Projekt: Anna-Seghers-Straße 175–177, 12489 Berlin-Adlershof
Bauherr: Annaseghers-lmmobilien GmbH, Fregestr. 5, 12159 Berlin
i.A. für BLR projektplan entwicklungsges. GmbH, Pacelliallee 9, 14195 Berlin
Apart-Hotel, 2023, LPH3 -LPH4
Ein Ort für alle – komfortabel, modern und inklusiv
Mitten im aufstrebenden Wissenschafts- und Technologiestandort Berlin-Adlershof entsteht ein einzigartiges Apart-Hotel, das Barrierefreiheit, Flexibilität und Nachhaltigkeit vereint.
Hier treffen moderne Architektur und durchdachte Grundrisse auf smarte Service-Angebote und eine offene, inklusive Ausrichtung. Das Projekt schafft ein Zuhause auf Zeit, das allen Gästen, unabhängig von ihren individuellen Bedürfnissen, höchsten Komfort bietet – egal ob für kurze Aufenthalte oder langfristige Nutzung.
Unser Ziel: Ein innovativer Ort, der Maßstäbe setzt, indem er Wohnen, Arbeiten und Erleben auf neue Weise verbindet – nachhaltig, zukunftsfähig und sozial inklusiv.
Planungsübersicht:
Geplant ist ein Beherbergungsgebäude (Apart-Hotel) mit 3 Vollgeschossen und einem Staffelgeschoss gem. BauOBln. im GE2. Es sind insgesamt 460 Beherbergungseinheiten geplant. Das Gebäude ist fast voll unterkellert.
Gesamt: 460 Apartments
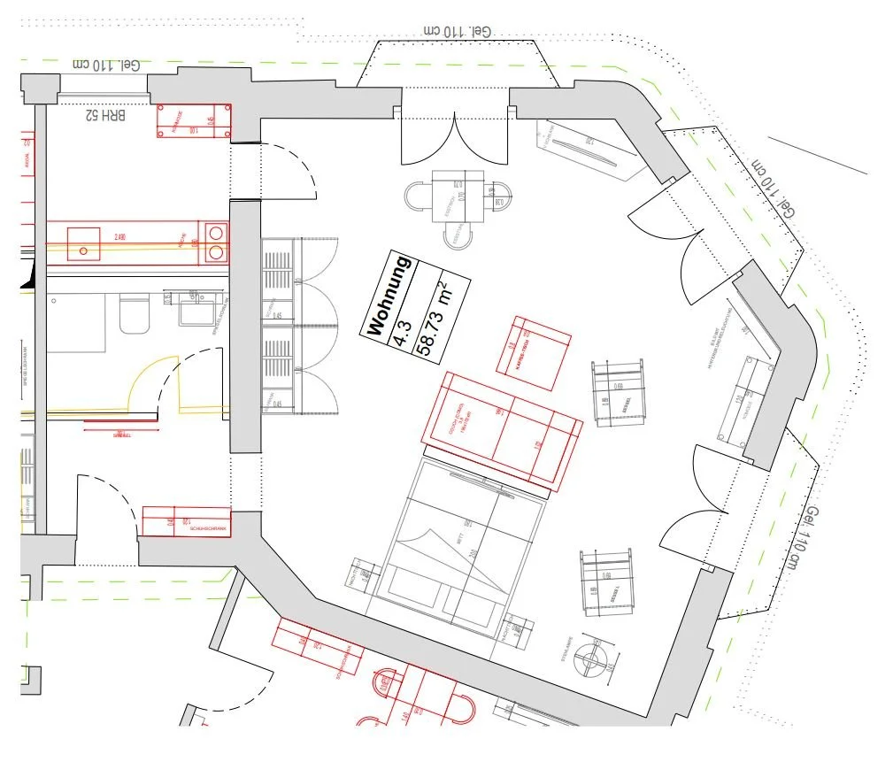
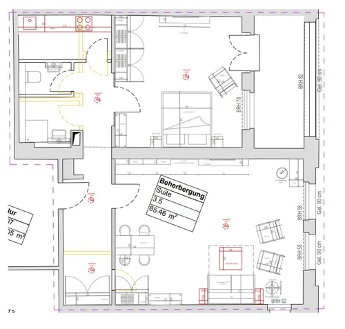
64 barrierefreie Apartments (bis ca. 24 m²)
14 rollstuhlgerechte Apartments (bis ca. 40 m²)
Grundrisse, die auf die Bedürfnisse unterschiedlicher Gästegruppen abgestimmt sind.
Untergeschoss
146 Pkw-Stellplätze, davon
6 barrieregerechte Stellplätze
2 Stellplätze für Kleinbusse
15 Frauenparkplätze
E-Mobilität: Vorbereitung für moderne E-Ladestationen
Fahrradstellplätze: 47, davon
23 Stellplätze für Sonderfahrräder
5 Stellplätze für Lastenräder & E-Bikes
Ergänzende Funktionsbereiche:
Fitnessstudio: ca. 129 m²
Sauna- und Duschbereich: ca. 51 m²
Hauswirtschaftsbereich: ca. 45 m² (Waschmaschinen & Trockner)
Kühlraum (20 m²) und Lagerfläche (40 m²) zur Versorgung der Restaurantküche im EG
Interner Lastenaufzug für effiziente Logistik
Erdgeschoss
Rezeption: ca. 45 m² – zentraler Anlaufpunkt für Gäste
Lounge / Bar: ca. 44 m² – für entspannte Begegnungen
Restaurant: ca. 124 m²
Küche ca. 47 m²
Hofterrasse für Außenbewirtung
Co-Working-Bereich: ca. 84 m² – moderne Arbeitsmöglichkeiten für Gäste
Serviceräume je Etage: bis ca. 37 m²
Außen- und Dachflächen
1. Obergeschoss: großzügige Terrasse ca. 750 m² (16,92 m x 44,48 m)
Staffelgeschoss: zusätzliche Terrassenflächen ca. 712 m²
Dachgeschoss: Photovoltaikanlage auf ca. 940 m² für eine nachhaltige Energieversorgung
Projektvision
Das Apart-Hotel an der Anna-Seghers-Straße setzt auf Nachhaltigkeit und Flexibilität und Inklusion,.
Es ist ein Ort, der Menschen zusammenbringt – ob Geschäftsreisende, Studierende, Familien oder Gäste mit besonderen Bedürfnissen.
Dank barrierefreier und rollstuhlgerechter Apartments, einer energieeffizienten Gebäudetechnik und modernen Serviceflächen entsteht hier ein innovatives Konzept, das den urbanen Lebensstil von morgen prägt.